商用厨房设计案例大全

咨询热线

010-56865672
朝阳文旅集团

朝阳文旅集团

北京市朝阳文旅改造,总部员工食堂厨房
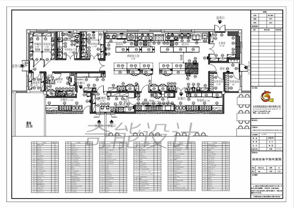
北京城市副中心行政区域食堂厨房工程设计

北京城市副中心行政区域食堂厨房工程设计

北京城市副中心为北京新两翼中的一翼,以最先进的理念、最高的标准、最好的质量推进北京城市副中心规划建设,着力打造国际一流的和谐宜居之都示范区、新型城镇化示范区和京津冀区域协同发展示范区。
伊泰北牧田园员工餐厅食堂厨房工程设计

伊泰北牧田园员工餐厅食堂厨房工程设计

食堂厨房设计,主要功能区有肉类粗加工区、蔬菜类粗加工区、热厨加工间、凉菜间、主食库、副食库、冷藏库、冷冻库、洗碗间、明档、售饭间、明档、更衣间等,厨房区域总面积约300㎡。
中国电科电子科技园食堂工程设计

中国电科电子科技园食堂工程设计

中国电科电子科技园建设项目位于河北省保定市涞水县石亭镇,面积约1375.46亩。
齐鲁银行大厦厨房工程设计

齐鲁银行大厦厨房工程设计

信息摘要:齐鲁银行大厦厨房设计服务包括职工餐厅厨房、商务餐厅厨房(含冷餐操作间)、商务咖啡吧操作间功能区等。项目基本情况:办公楼地上30层(含2层设备层),地下3层,总建筑面积9.85万平方米,职工餐…
... 1 2 3 ...